La Escuela del Pueblo
a strategy for constructing schools in rural Honduras
Architectural & construction design as individual work
The thesis project tackles the planning of schools in Honduras, Central America.
Rural regions of low-income countries like Honduras particularly lack functioning and long-lasting educational infrastructure. The buildings are seldom fully developed and are vulnerable when natural disasters strike. Therefore, it is necessary to rethink conventional school buildings and evaluate a strategy for future school planning.
typical school building in rural Honduras

The proposed strategy focuses on the environmental conditions in the rural part of the valley “Valle del Sula,” close to the city “San Pedro Sula.” The climate is hot and humid. Heavy rainfall, flooding, and tropical storms occur regularly. Moreover, direct sunlight, overheating of the buildings, and rain noises challenge the utilization of school buildings. The proposed planning strategy can only partially prevent damage and deficiencies. But it offers opportunities to reduce or avoid them. Altogether, the plan shows how spatial quality and educational offerings can be improved.


cross-section of a typical school building showcasing the impact of climate conditions and regional natural disasters
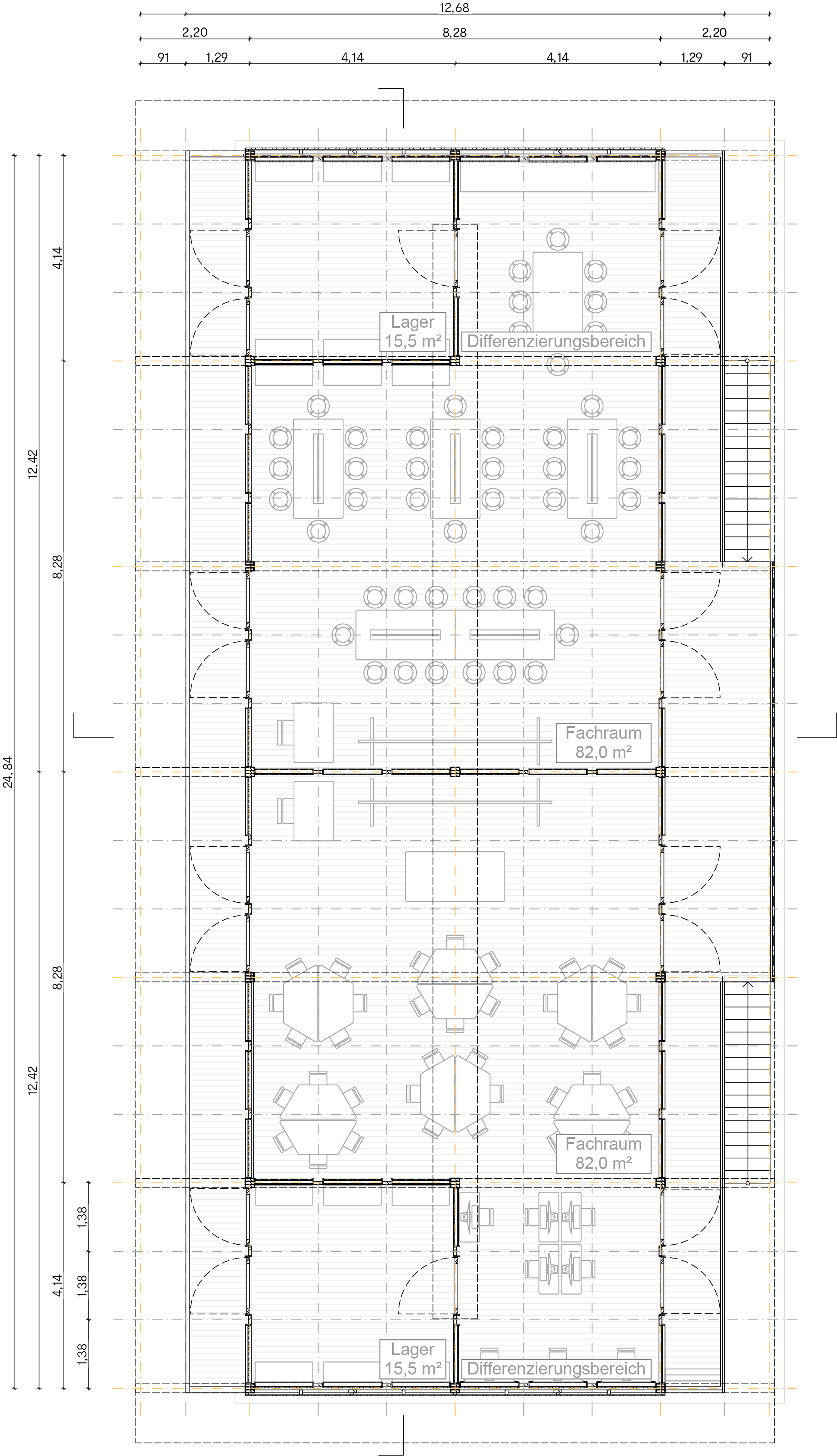
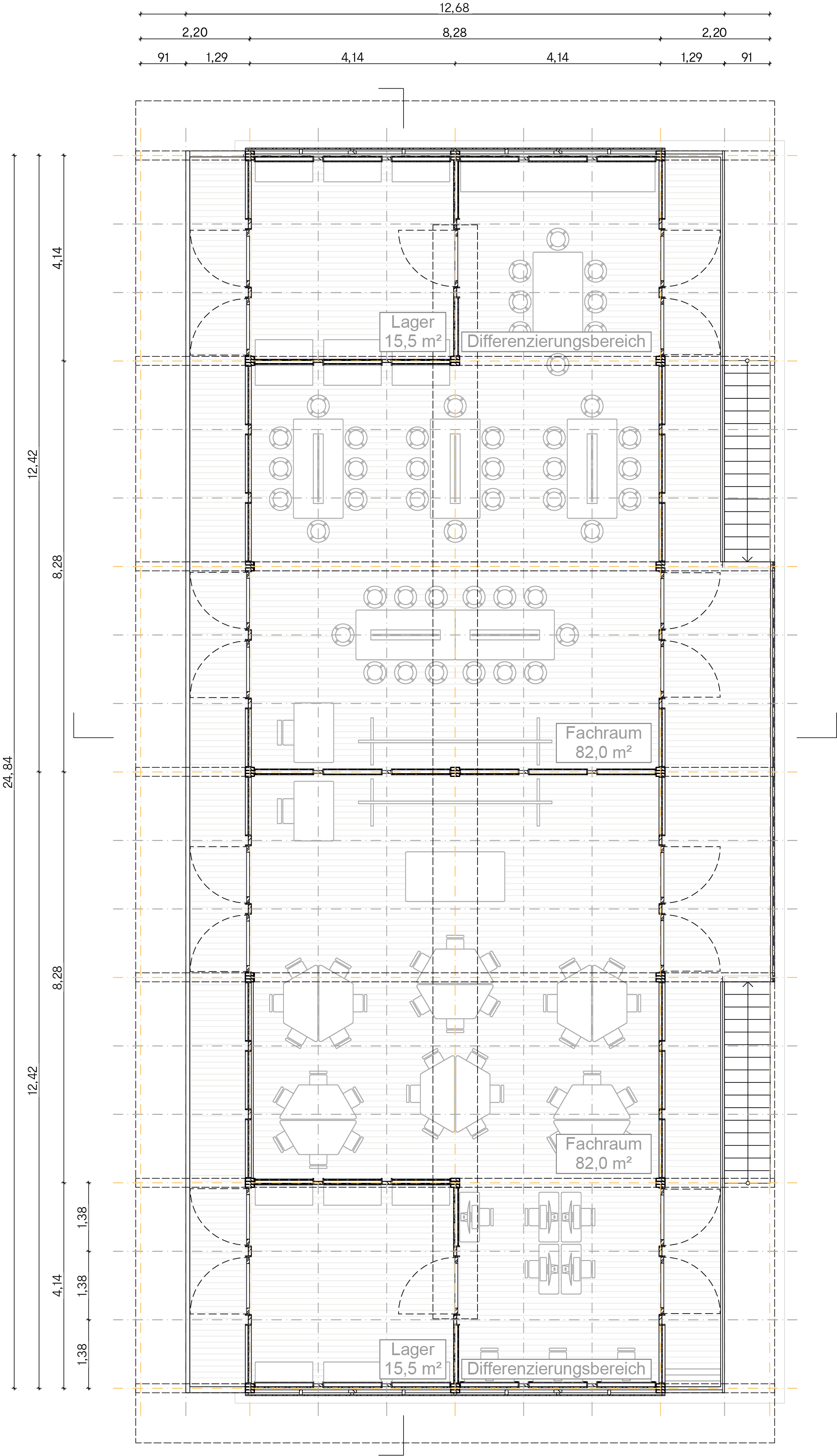
The ministry for education requires 2.051 m² for the entire space needed by a regular school, „básica“ with 120 pupils. Combination and reduction in the program can reduce the necessary space by 410 m².
To prevent severe flooding damage, building two stories is reasonable. Rooms that contain a lot of teaching material and have a lot of interior space should be placed on the upper level.
Using an eight-by-eight-meter grid, all the required space can fit into two building
modules. One is a teaching module, and one is for additional functions such as administration and the cafeteria. The module is then 8 m wide and 24 m long.

A simple rectangular form ensures the structure’s stability. The gabled roof has a flat slope to reduce wind pressure. The gable ends are oriented toward the North and South. A sufficient roof overhang can furthermore protect the inside against direct sunlight. Opposite-facing openings alleviate the wind pressure on the walls and simultaneously enable cross-ventilation. When combined with roof openings, a constant air stream ventilating the building will prevent heat accumulation.


conceptual cross-section for the proposed construction design method









reconstruction of classrooms at the 'Soriano de Medina' school in Veracruz, Urraco Yoro
After finishing my thesis, I teamed up with the NGO Deutsch-Honduranische Gesellschaft e.V. (DHG) to work on a rebuild at a school in the Valle del Sula region. The existing building had two storeys, but only the upper level was in use and had two classrooms. While the bottom concrete pillars were still intact, termites weakened the second-floor timber construction, which was no longer safe. For the reconstruction design, we retained the original layout but incorporated a movable separation wall to connect the two classrooms. On the ground level, we removed any space-blocking columns on the inside and strengthened the outer perimeter wall to accommodate two additional classrooms.
academic work, 2021
as part of the bachelor thesis ba.m3.5
supervised by prof. Dipl. Ing. Martin Ebert & Dipl. Ing. Benedikt Schleicher
Münster School of Architecture