Retrofitting for Heat Resilience
scientific research as individual work
With climate change increasing the frequency and severity of heat waves in the Netherlands, the risk of buildings overheating poses a critical challenge to occupant health, energy efficiency, and sustainability goals. Despite regulatory progress on reducing energy-related emissions, current renovation practices often overlook overheating issues.

This study addresses this gap by integrating heat hazard loss as cost into a probabilistic cost-benefit analysis to assess the long-term benefits of improving resilience. The method can assist in decision-making when retrofitting by informing about the financial feasibility of mitigation, including the impact of recurring extreme events.











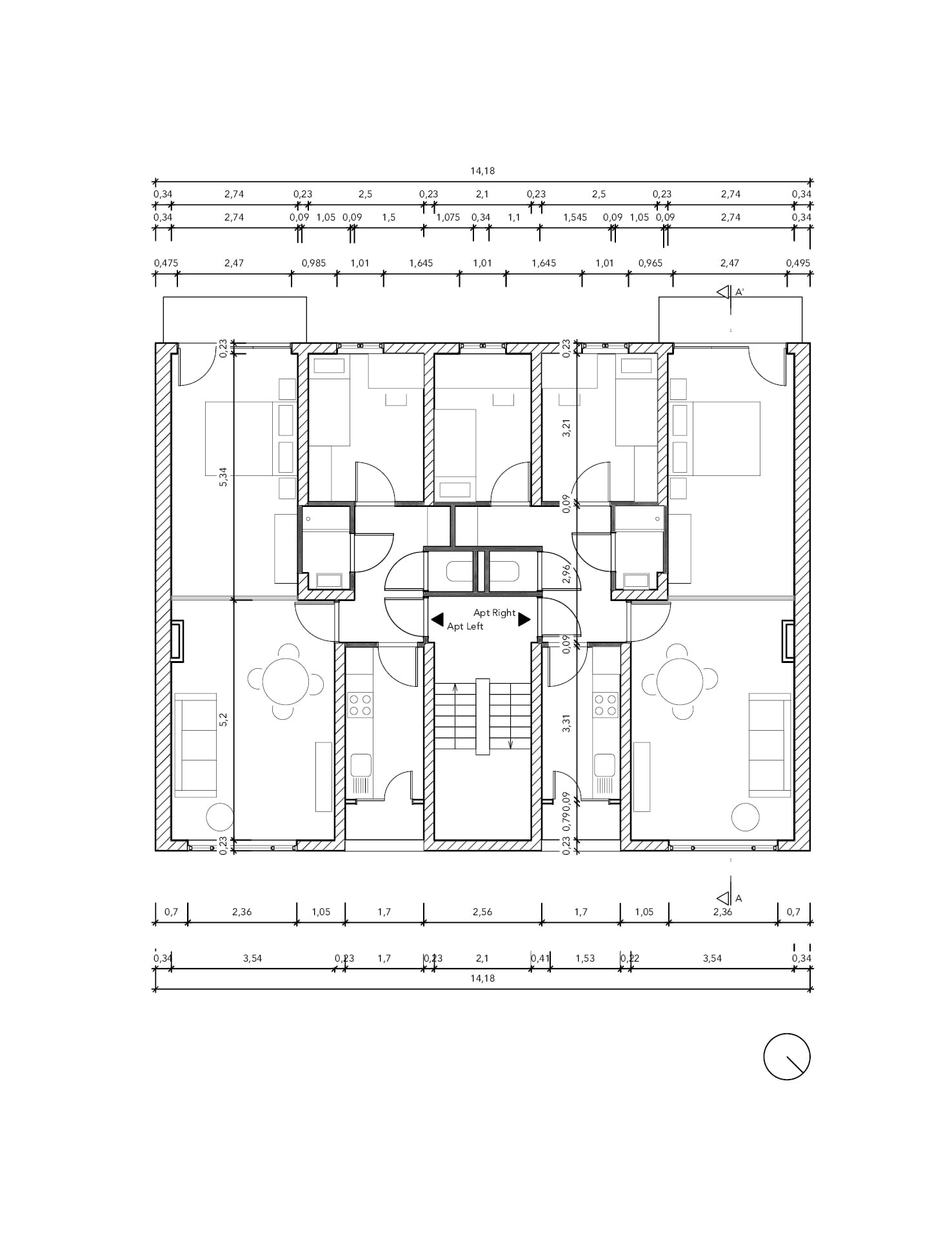
In a case study, renovation alternatives were tested on a housing unit in Rotterdam. The performance was evaluated considering energy efficiency, heat resilience, and carbon footprint. Using the developed framework, the distribution of costs and cost recovery under climate uncertainty were investigated.

The findings show that while passive cooling measures can significantly reduce overheating, their cost recovery is limited under current climate conditions. Still, the financial analysis shows that resilience improvements prevent operational costs from overshooting in the worst-case scenarios. Finally, integrating heating with cooling in a cost-benefit analysis can disclose counteracting measures that reduce the net benefit.
The study demonstrates that further investigation into cost-effective climate adaptation is crucial to building future-proof environments.
View the whole project here.


distribution of total cost of ownership and worst-case additional cost


savings distributions for heating and cooling compared



NPV results







renovation packages
Academic Work, 2025
As part of the AR3B025 Building Technology Graduation Studio
Supervised by Dr. Simona Bianchi, Dr. Alessandra Luna Navarro & PHD candidate Diletta Ricci
Delft University of Technology