The Passive Prefab
Initial public reconstruction in Ukraine
construction design as individual work
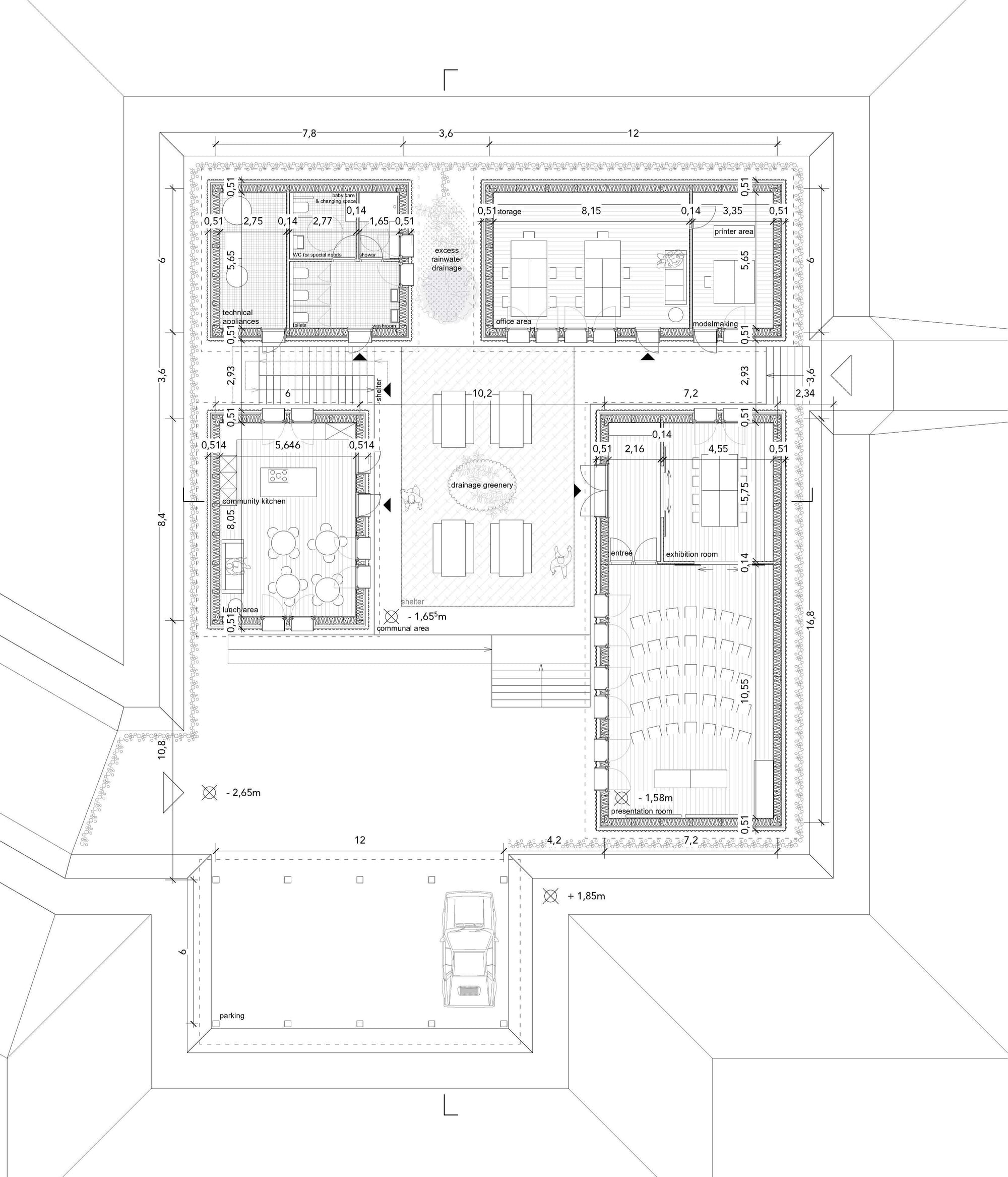
VNGi, together with the hromadas of Kherson and Vyeskopillia, set a design challenge for EXTREME studio architecture and building technology students. With rebuilding urgently needed across Ukraine, and much public infrastructure unusable, the brief called for a public communal hub to support reconstruction. The program included offices for 10 people, a communal kitchen and cafeteria, a lecture space, sanitary facilities, and storage.
Rural villages and towns in Kherson were chosen as the design context. Safety, speed, and flexibility were key goals, with the main challenge being protection from pressure waves, mortar fire, and fire hazards amid ongoing fighting in the region.

With imports restricted, sourcing local materials was a crucial first step. Ukraine is rich in mineral resources, exporting iron and steel to the EU, but many production facilities lie in active war zones or are occupied (Unguru et al., 2022). Steel and aluminium were therefore reserved for protective facades only.
The main structure was designed as a simple timber frame using sawn beams and boards from northern forests, largely unaffected by the war. Ukraine’s timber industry produces veneer, plywood, boards, and more, but advanced products like glulam were excluded (Forest Resources and Context of Ukraine, 2020). Given the country’s strong grain production, straw was identified as a natural insulation material.

The design began with defining on-site assembly for wall, roof, and floor elements. Prefabricated off-site, the components are lifted into place by small cranes and fixed with hooking joints, set on a screw pile grid. Simple box-shaped units provide lateral stability against shelling and can be scaled up or down by combining modules of different sizes.
Buildings are arranged around a courtyard with inward-facing openings for passive protection. Sandbag walls, built from earth excavated on-site, offer complete pressure-wave shielding, with two exits and the option of an underground prefabricated bunker. Grass-covered roofs help camouflage the structures. After the war, removing the sandbags transforms the site into an open, adaptable public courtyard for uses such as schools or administration.









https://extremearchitecture.nl/tamara-lalyko
Academic Work, 2024
As part of the course AR0142 EXTREME Technology
coordinated by Joost Schroën and supervised by Erik Hehenkamp
Delft University of Technology
Forest resources and context of Ukraine. (2020). https://www.timbertradeportal.com/en/ukraine/114/country-context
Unguru, M., Ciupagea, G. K., & Garbossa, C. (2022). Ukraine’s trade in non-food raw materials Focus on EU-Ukraine trade relations.
https://doi.org/10.2760/816082