Woven Structures
Architectural design in collaboration with Ronja Märtens
„Woven structures“ is a project honoring the fashion of the young designer Kenneth Ize. It seeks to translate his artistic approach into architecture poetically. Ize’s creation embodies transparency, diversity, and inclusion. He picks up traditionally woven garments and links them to a modern design aesthetic.

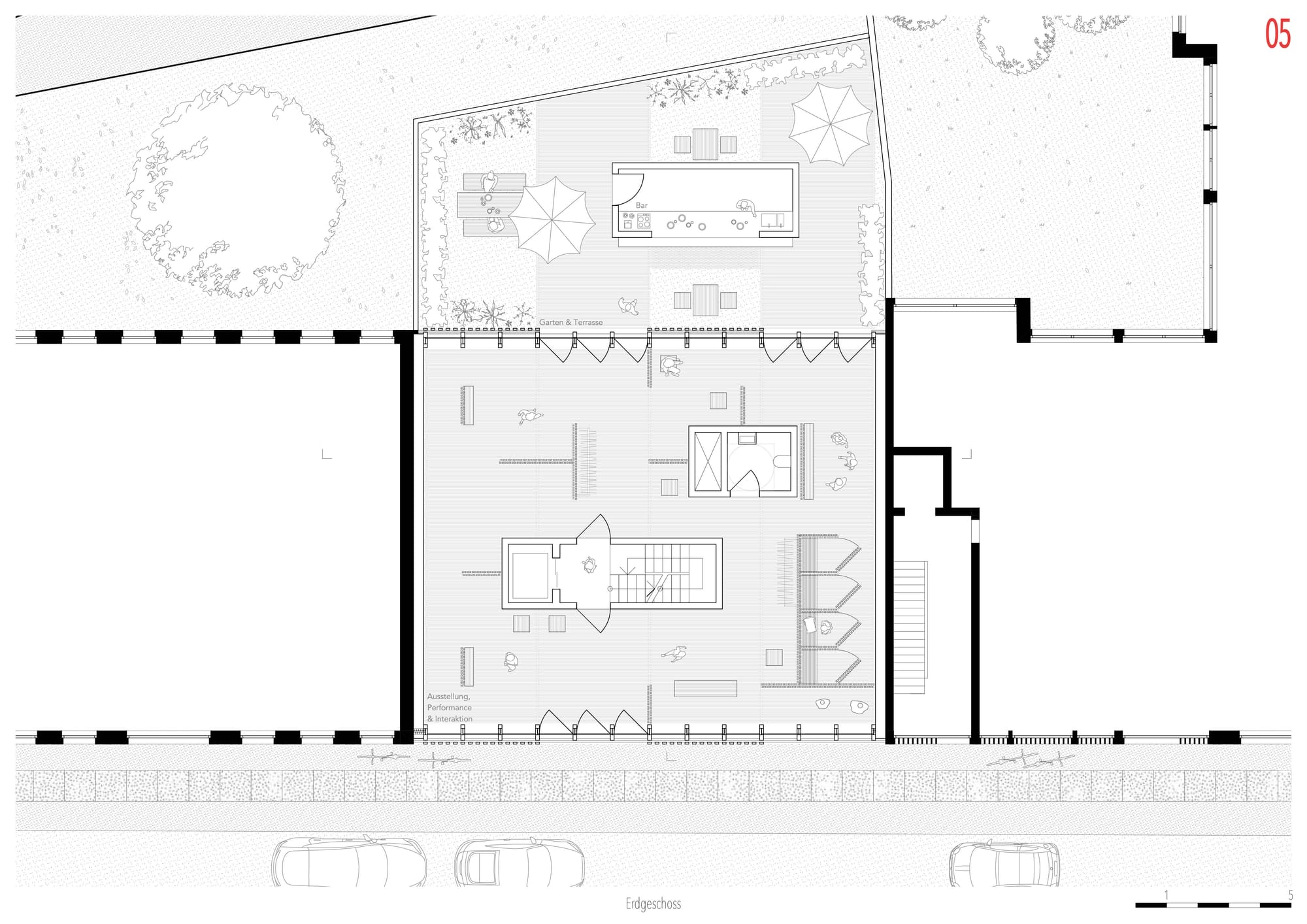
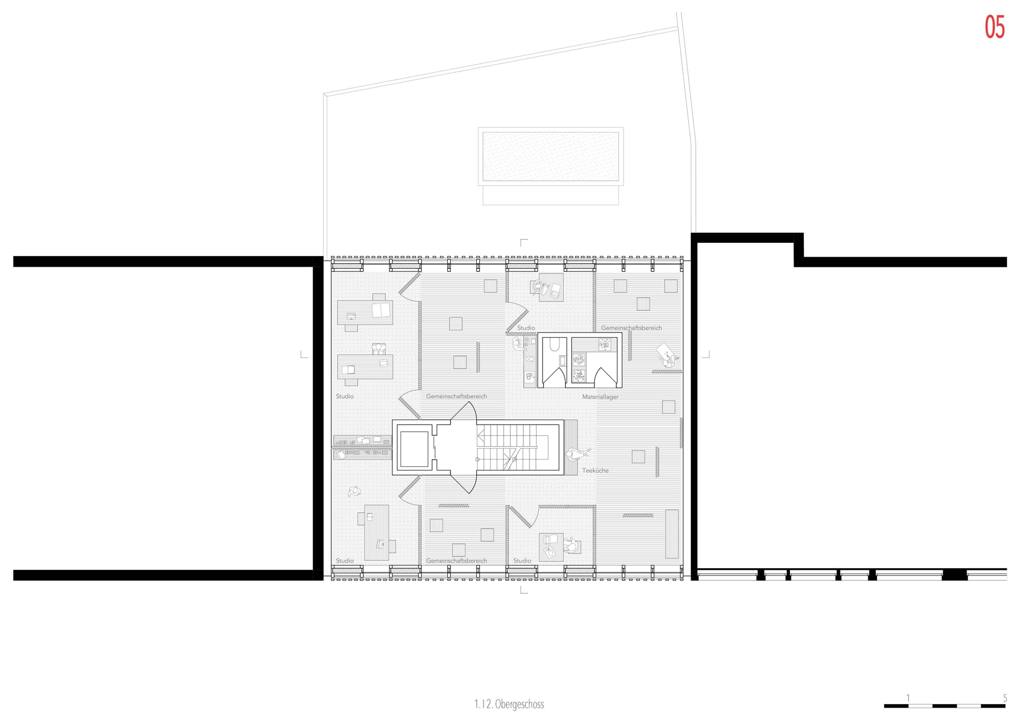
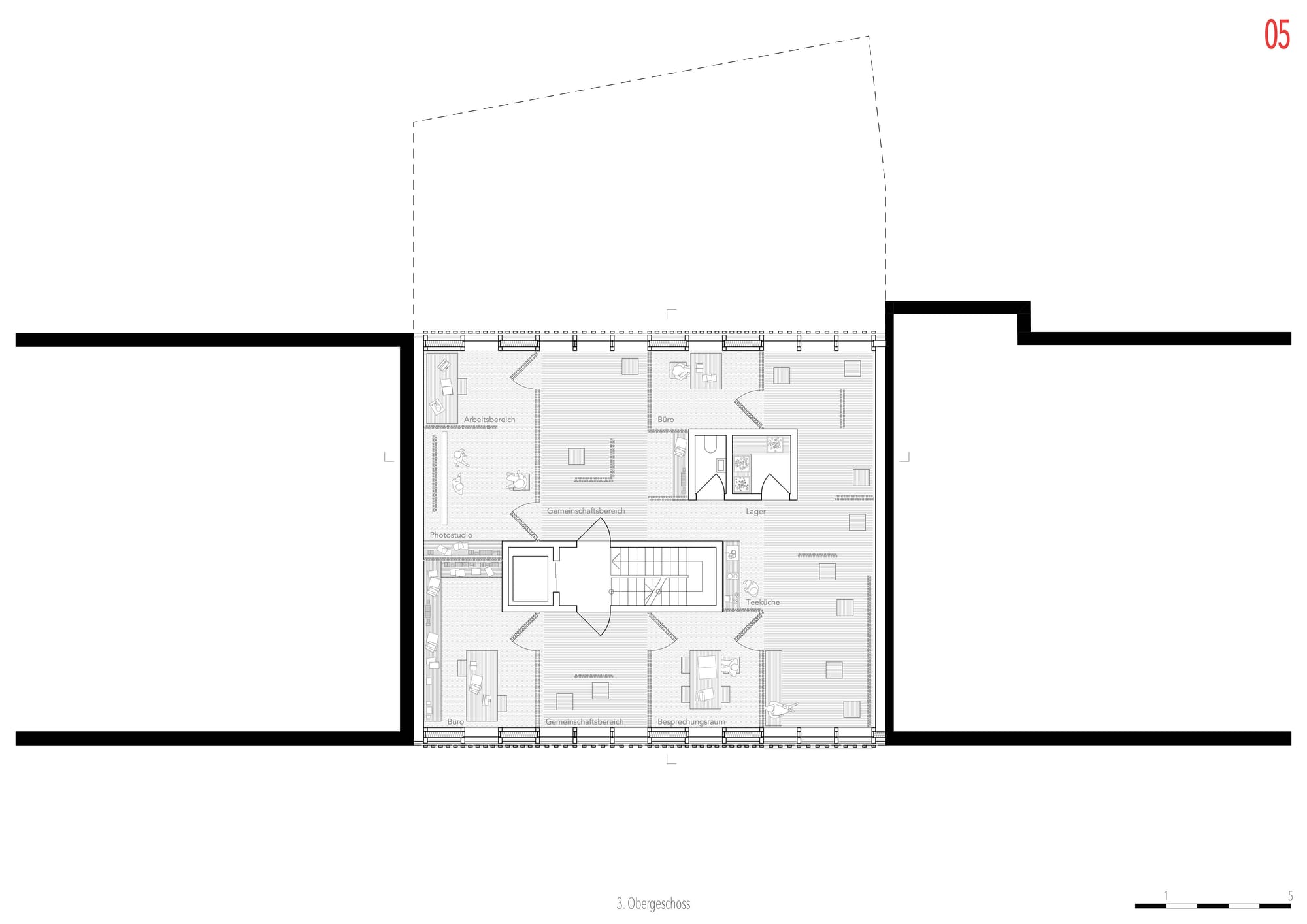
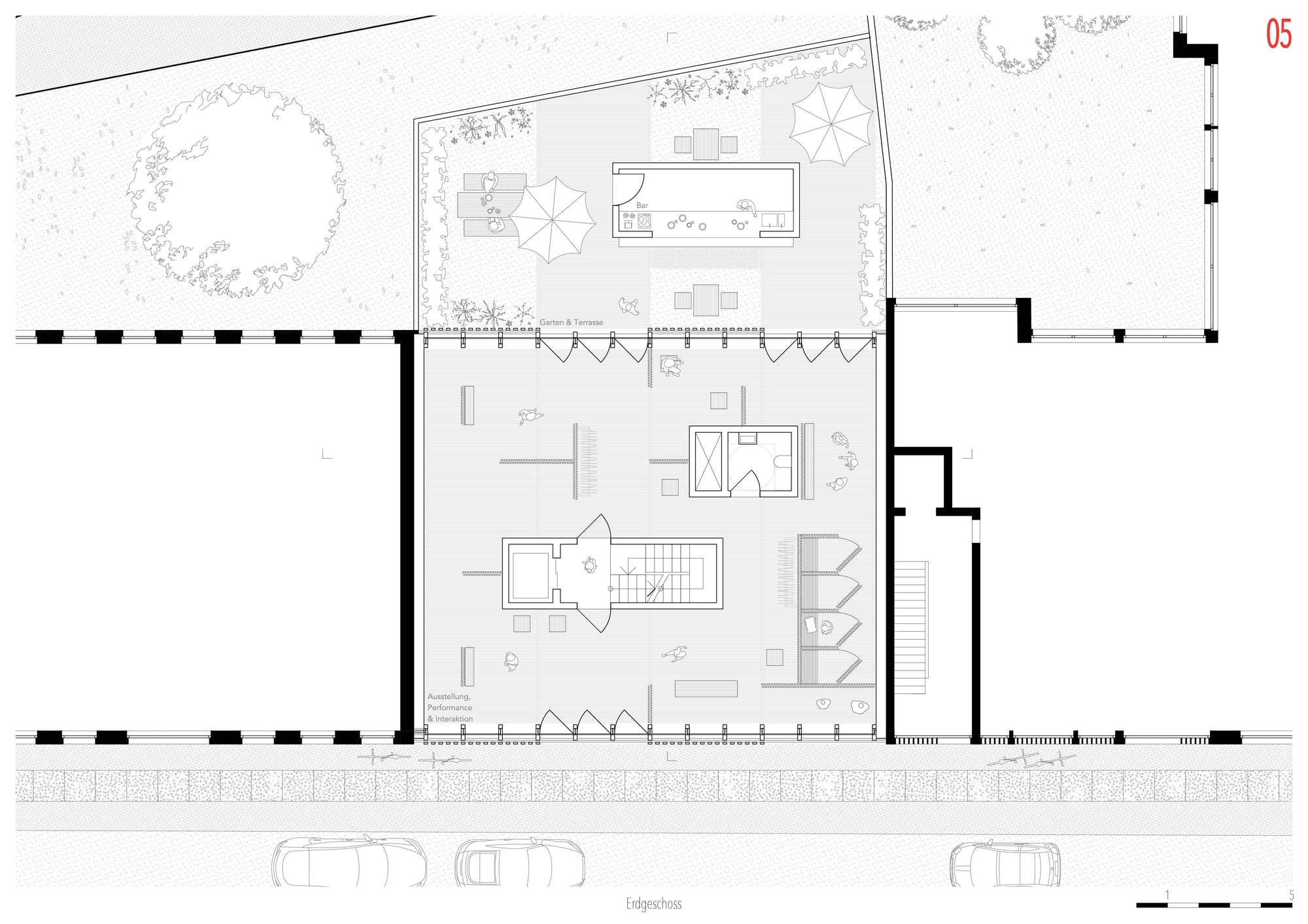
“Woven structures” proposes a design for a possible studio house for Ize’s Label at a vacant lot in the center of Berlin. For his designs, Ize utilizes a heavy woven textile called “Aso Oke” which originated in West Africa. The handmade fabric is woven by intertwining thin vertical threads around a thicker horizontal one. Ize uses this technique to create original upright stripe patterns. He then cuts and layers the fabric into straight-fitting clothing with fringes at the hemline.

For our project, we transferred the weaving technique to create architecture using wood and clay materials.






floorplans









academic work, 2021
as part of the course ba.m2.4 poesis of metamorphism.textile
coordinated by prof. Kirsten Schemel & tutored by Avital Greenshpon
Münster School of Architecture